- угол открывания 90 град
- подходит для тяжелых створок
- двигатель с управлением от микропроцессора
- стабилизатор цепи для максимального усилия
- управление дверью остается ручным
- пассивная и активная система защиты от зажима
- крепления в комплекте
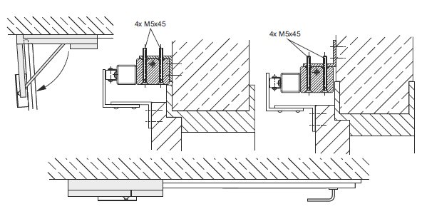
Установка привода DDS 54/500 FR с кронштейном DDS_B
Габаритные размеры
Установка привода (открывание наружу)
Установка привода (открывание внутрь)
Подключение электромеханической защелки
Дверь желательно оборудовать доводчиком для удержания ее в закрытом положении при ежедневном использовании. Дверной привод DDS 54/500 FR при повседневном использовании дверного прохода, не воздействует на створку двери и не мешает открывать и закрывать дверь в обычном режиме.
Так же дверь может быть оборудована дополнительными системами контроля доступа с использованием электромеханических защелок нормально-закрытого типа. Эти запирающие механизмы должны находится в положении "ЗАКРЫТО" без подачи питания, а при подаче питания разблокировать створку двери. Напряжение будет подаваться все время, пока не будет подана команда на закрывание привода (пока не будет снята пожарная тревога). Подключение электрозащелки осуществляется непосредственно к приводу.
В связи с этим электромеханические электромеханические защелки должны обладать следующими характеристиками:
- Питание 24В постоянного тока (24V DC)
- Продолжительность включения (подачи напряжения) – неограниченная. По Европейским стандартам с маркировкой 100% ED/DC
- Максимальный потребляемый ток – 1А.
Примечание: большинство электромеханических нормально-закрытых защелок могут быть подключены к напряжению на непродолжительное время (1-10 минут). В противном случае, при длительной подаче напряжения на стандартную нормально-закрытую защелку, ее катушка перегарает, т.е. защелка выходит из строя. Что бы этого избежать, необходимо использовать только специальные электромеханические защелки с постоянным напряжением питания и имеющих маркировку 100% ED.

