Описание
Электромагнитный замок 1080S нормально-открытый (NO) для распашных приводов DSW, раздвижных приводов DSL и DSH. Устанавливается на входных дверях для фиксации створок в закрытом положении ночью.
- Напряжение: DC12V
- Сила тока в рабочем режиме: 0.45А
- Сила тока в режиме ожидания: 0.45А
- Диаметр штока: 15мм
- Ход штока: 15мм
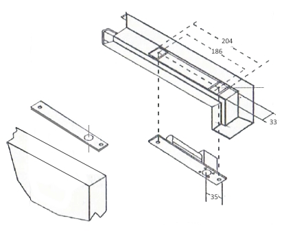
- Габаритные размеры замка: 202х43х33
- Габаритные размеры планки: 210х42х0.5
Устройство состоит из двух частей: корпус электрозамка и ответная часть. При установки расстояние между корпусом замка и ответной планкой не должно превышать 3 мм. Отверстие в планке должно совпадать с штоком замка.
Для подключения электрозамка используется двухжильный кабель сечением 0.5..1.5х2. Электрозамок фиксирует створку и находится в рабочем положении при подаче питания.
Установка электрозамка

Электрические подключения
Документы
1080S Manual RUS
784 кб

